详细说明
生产线布置图
开卷机—辊压成型—冲孔—切断—放料平台


梯边冷弯成型设备
技术参数:
| 参数表 | 项目 | 单位 | 参数 | 备注 | |
1 | 原材料规格 | 钢材类型 | Q235镀锌钢卷 | ||
| 强度 | MPa | ≤235 | |||
| 厚度 | mm | 1.5mm~2.0mm | |||
| 卷料内直径 | mm | 500 | |||
| 重量 | T | 2 | |||
| 2 | 板型宽度 | mm | Φ380~Φ530mm | ||
| 3 | 生产线速度 | m/min | 10 | ||
| 4 | 轧辊材质 | 镀铬15 | |||
| 5 | 辊压驱动 | 外部电机驱动 | |||
| 6 | 操作系统 | Windows2000 | |||
| 7 | 总电机功率 | Kw | 大约11KW | ||
| 8 | 控制系统 | Plc自动控制系统 | |||
| 9 | 维度(L*W*H) | m | |||

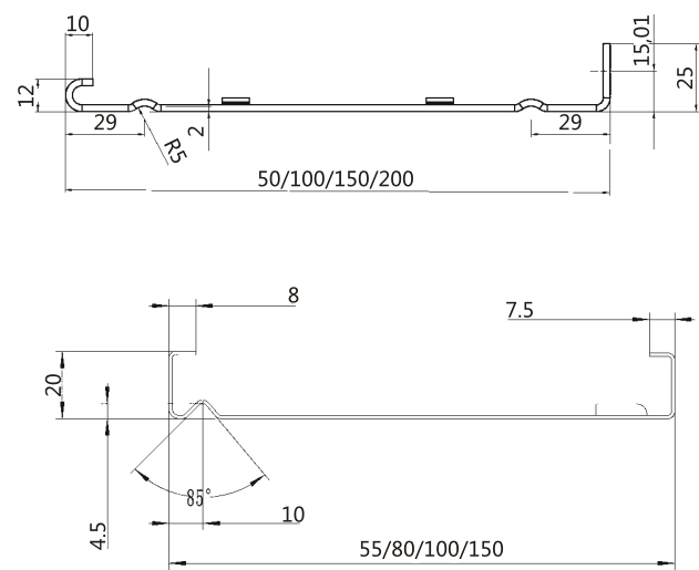
梯边设备成型部分

TF梯级式桥架板型图

梯边型钢

电话:15319165001
邮箱:contact@wangpaituo.net
地址:陕西省西安市雁塔区太白南路71号天地源悦熙广场2幢1单元10层11006号房
邮箱:contact@wangpaituo.net
地址:陕西省西安市雁塔区太白南路71号天地源悦熙广场2幢1单元10层11006号房
-
立体车库设备冷弯生产线 -
TF机车用型钢系列冷弯生产线 -
TF高速公路护栏冷弯生产线 -
TFU400-7X汽车大梁冷弯生产线 -
TF金属仓1.2-27/90仓顶板冷弯生产线 -
TF金属粮仓仓储立柱冷弯生产线 -
TF养鸡设备鸡笼饲喂型材冷弯生产线 -
TF粮食提升机外壳生产线 -
TF料仓波纹板冷弯生产线 -
TF畜牧定位栏底梁冷弯生产线 -
TF养殖设备型材系列冷弯生产线 -
阳极板行业--480、ZT24冷弯生产线 -
TF1500*6保护板冷弯生产线 -
TF光伏支架C型钢冷弯生产线 -
TF光伏支架/金属支吊架型钢冷弯生产线 -
TF钢管束型钢冷弯生产线 -
钢板桩冷弯生产线 -
脚踏板冷弯生产线 -
门板设备冷弯生产线 -
门框设备冷弯生产线 -
TF箱房型钢生产线 -
TF抱合梁冷弯生产线 -
聚氨酯板材设备冷弯生产线 -
屋面板冷弯生产线 -
TF楼承板冷弯生产线 -
琉璃瓦冷弯生产线 -
TF C/Z型钢冷弯生产线 -
TF动力柜立柱冷弯生产线 -
梯边机冷弯生产线 -
机车导轨冷弯生产线 -
母线槽冷弯生产线 -
货架底板冷弯生产线 -
货架拉杆冷弯生产线 -
TF 货架立柱冷弯生产线 -
电缆桥架冷弯生产线 -
金属灯罩冷弯生产线 -
电气柜冷弯生产线 -
电梯导轨冷弯生产线














